Fastighetsmäklare sökes. Läs mer.
ANNO 1952

Norra Bulltoftavägen 67A

Kirseberg Malmö

Renoverad genomgående tvåa med inglasad balkong och smart planlösning!

På första våningen bjuder denna renoverade genomgående tvåa på rymligt vardagsrum med utgång till inglasad balkong, kök i vitt med matplats, rofyllt sovrum, renoverat badrum samt goda förvaringsmöjligheter. Här bor man i lugna, grönskande omgivningar i stabil och välskött HSB-förening. Välkommen på visning!

Bostadsfakta

Bostadstyp: Bostadsrätt
Boarea: 55.0 m2
Rum: 2 rum och kök
Våningsplan: 1 av 3, hiss finns
Kommun: Malmö
Område: Kirseberg
Byggår: 1952
Månadsavgift: 5640 kr/mån
inkl. värme, VA, kabel-TV (basutbud) och bredband.
Pris: 1 195 000 kr utgångspris

Visningar

Onsdag 21 Januari
Kl 18:30 - 19:00
Söndag 25 Januari
Kl 12:15 - 12:45

Ansvarig Mäklare

Ronja Karlsson Törnborg Registrerad Fastighetsmäklare 076-0266335 Läs mer om mig

Bilder

Tillbakablick

Brf Musköten är del av det stora bostadsbygget och som präglade Malmö under 1950-talet, en period då staden växte snabbt och behovet av moderna bostäder var mycket stort. Efterkrigstidens optimism i kombination med en stark befolkningstillväxt gjorde att Malmö satsade kraftfullt på nya bostadsområden. HSB spelade en central roll i detta arbete och många av de flerfamiljshus som byggdes under denna tid uppfördes inom ramen för bostadskooperationens vision om funktionella, trygga och trivsamma hem.

Det område där Norra Bulltoftavägen 67B ligger speglar tydligt den tidens stadsplanering. Bebyggelsen kännetecknas av öppna kvarter, generösa grönområden och god tillgång till service. Husen i Brf Musköten är typiska för 1950-talets funktionalistiska stil, med rena fasader, stora fönsterpartier och genomtänkta planlösningar där ljus och rymd prioriterades. Föreningen har även gemensamma utrymmen som tvättstugor och förråd, något som speglar den kollektiva tanke som ofta låg bakom bostadsbyggandet under denna period.

Brf Musköten är därmed inte bara ett bostadsområde utan en del av det svenska folkhemsbygget, där samhällsambitionen var att skapa trygga och hållbara boendemiljöer för en bred befolkning. Än idag lever mycket av detta arv kvar i föreningens arkitektur och atmosfär.

Interiör

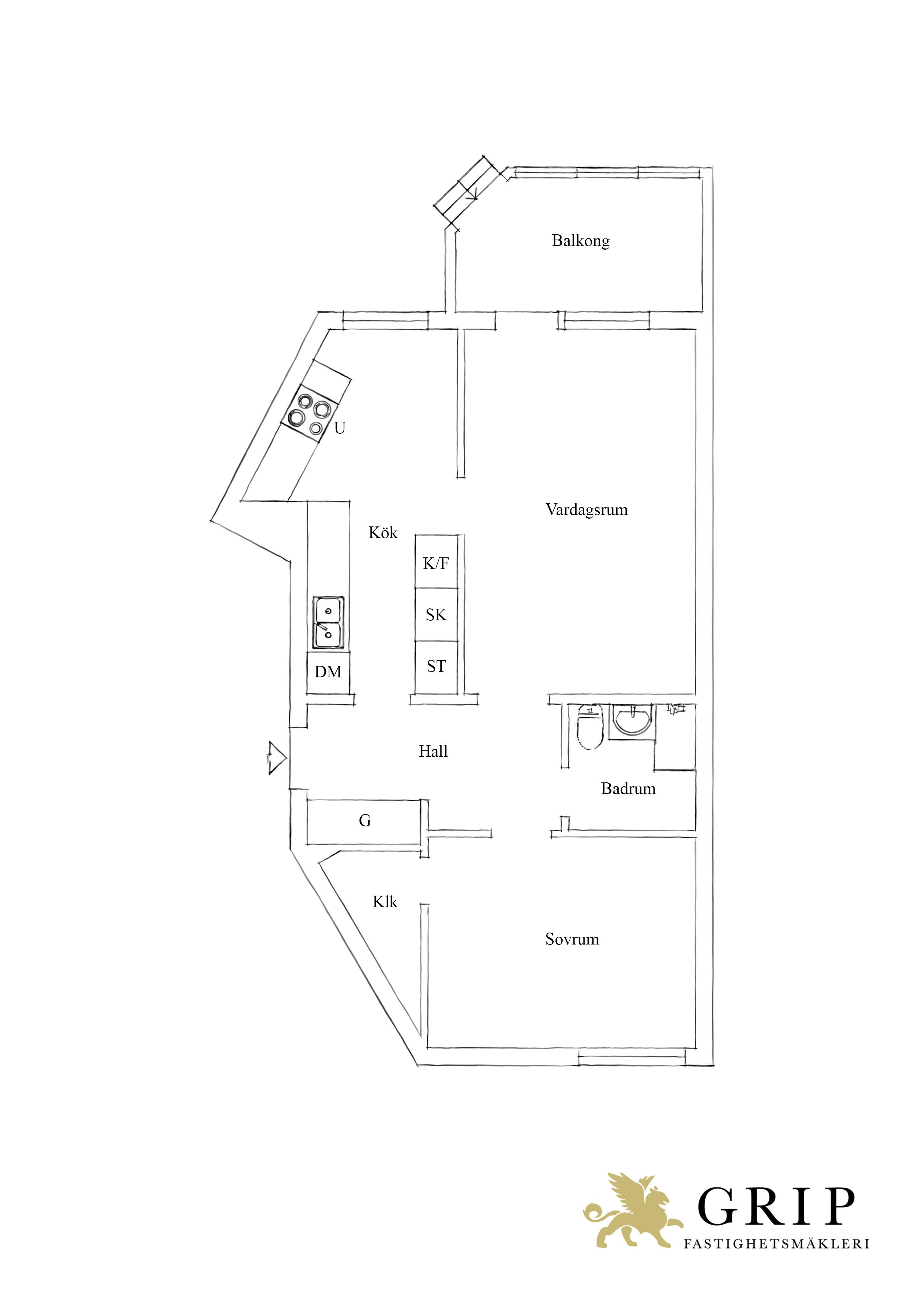
I grönskande omgivningar, med närhet till fina Beijers Park, mataffär, gym och annan närservice, ligger denna välplanerade tvåa i de eftertraktade stjärnhusen. Lägenheten ligger på första våningen och har en handikappanpassad ingång, vilket gör den lättillgänglig för alla. Den erbjuder dessutom en stor inglasad balkong i västerläge.

Hall:

Innanför dörren välkomnar hallen med vita väggar och brunt laminatgolv. Till höger finns en rymlig skjutdörrsgarderob med plats för avhängning och förvaring.

Kök:

Till vänster om hallen ligger det rymliga köket, som installerades 2025 och är cirka 2,5 år gammalt. Köket har ett stilrent kakel i grå-beige stenfärg och en laminatbänkskiva i matchande ton. Vitvarorna från Siemens består av induktionshäll, ugn, mikro och diskmaskin från 2023, medan kyl och frys från Hisense är från 2024. Rummet har vita väggar och vit köksinredning, och på golvet ligger samma slitstarka bruna laminat som i hallen. I köket finns plats för ett matbord för cirka fyra personer, och en dörr kan öppnas upp mot vardagsrummet för en mer öppen och social planlösning.

Vardagsrum:

Köket leder vidare till vardagsrummet med vita väggar och samma slitstarka laminatgolv som i resten av lägenheten. Rummet rymmer soffgrupp, soffbord, TV-möbel, bokhylla och matplats. Från vardagsrummet finns utgång till den stora, inglasade balkongen.

Badrum:

Badrummet är helkaklat i vitt med beige klinkergolv. Här finns duschhörna med glasvägg, WC, tvättställ och spegel. Badrummet renoverades 2025 och dokumentation av renoveringen finns.

Sovrum:

Lägenhetens sovrum har vita väggar och brunt laminatgolv. Rummet rymmer dubbelsäng, nattduksbord, byrå och plats för ett skrivbord om så önskas. En stor klädkammare finns också, perfekt för förvaring.

Fakta

Bostadstyp: Bostadsrätt
Boarea: 55.0 m2
Rum: 2 rum och kök
Våningsplan: 1 av 3, hiss finns
Energideklaration: Utfärdad 2019-09-03
Primärenergital: 174 kWh/m2 och år (F) Energiförbrukning ATEMP: 141 kWh/m2 och år
Byggnadstyp: Flerbostadshus
Byggår: 1952
Övrigt: Från vardagsrummet nås den rymliga, inglasade balkongen med plats för soffgrupp eller bord och stolar. Balkongen har trallgolv och ligger i västerläge, vilket bjuder på eftermiddags- och kvällssol. Från balkongen finns även en utgång mot Musketörgatan.

Säljaren disponerar idag över två källarförråd, ett större och ett mindre.
Pris: 1 195 000 kr utgångspris
Månadsavgift: 5640 kr/mån
inkl. värme, VA, kabel-TV (basutbud) och bredband.
Andelstal: Andel i förening 0.5887 %
Andel av årsavgiften: 0.5887 %
Bostadsrättens indirekta nettoskuldsättning:
345 442 kr
Kommentar till nettoskuldsättningen: Uträkning har skett enligt följande med inhämtade uppgifter från årsredovisningen för 2023/2024 (Lång- och kortfristiga skulder – kassa och bank - avräkningskonto HSB Malmö -skattekonto - andel HSB Malmö)*bostadsrättens andel av de totala årsavgifterna. (66 779 782 - 6 471 445 – 1 603 936 - 24 927 - 700) * 0,005887 = 345 441,943
Tillträde: Enligt överenskommelse.

Föreningen

HSB Brf Musköten

Allmänt

HSB Brf Musköten är en äkta bostadsrättsförening som består av 157 lägenheter som samtliga upplåts med bostadsrätt. Föreningen bildades 1949, byggnaderna färdigställdes 1952 och har adresserna Norra Bulltoftavägen 67 A-B, 71 A-B, 73 A-B, Vattenverksvägen 48 A-B, 50 A-B, 52 A-B, Musketörgatan 4 A-C. Föreningen äger marken.

Antal lägenheter: 157
Äger föreningen marken? Ja
Överlåtelseavgift: 1480 kr
Pantsättningsavgift: 592 kr
Ekonomi

Föreningen har historiskt gjort mindre justeringar av avgiften med några procent årligen. Under 2024 genomfördes dock en större höjning med 10 %. Beslut om eventuell avgiftsförändring tas vanligtvis under sensommaren och aviseras under hösten, med ikraftträdande från årsskiftet. För 2026 kommer månadsavgiften att uppgå till 5 640,08 kr/månad.

Renovering och underhåll

Genomförda renoveringar och underhåll:
1989: En större renoveringsåtgärd genomfördes. Hissar installerades, trappuppgångar renoverades, inglasade balkonger byggdes, fönster och radiatorer byttes ut, elstammar renoverades, tappvattenstammar byttes, och nya maskiner installerades i tvättstugorna.
2007: Nya tvättmaskiner installerades.
2008/2009: Taken lades om.
2009: Värmesystemet moderniserades.
2011: En ny lekplats anlades.
2014/2015: Relining avloppsstammar
2015: OVK-besiktning genomfördes.
2018: Brandsäkring av källargångar utfördes.
2019: Fasadrenovering av samtliga fastigheter. Byte av plåttak på samtliga balkonger, entreér och cykelställ, som också målades. Renovering och målning av husgrunder samt montering av fuktskyddande betongplattor.
2021: Ett taggsystem installerades för samtliga ytterdörrar och källarinnerdörrar. Digitala bokningstavlor installerades till tvättstugor, bastu och gästlägenhet.
2022: Nya kärlgarage för förpackningsåtervinning sattes upp.
2022–2024: Samtliga hissar moderniserades.
2023: Kolkällaren renoverades.
2023: Samtliga el-stigare byttes ut.
2023: Belysningen i gemensamma utrymmen byttes till LED med närvarovakt.
2023: Skyddsrummateriel uppdaterades.
2023–2024: Affärslokal byggdes om till två bostadsrättslägenheter.
2024: Ett nytt stängsel sattes upp på parkeringen.
2024: Två stenmanglar demonterades och forslades bort.
2025: Uppfräschning av stensättning vid parkeringen. (Vattenverksvägen/ Muskotnöten).
2023 - 2025: Översyn av VVC. (Genomför åtgärder för att förbättra VVC-systemet genom att koppla bort handdukstorkar, kontrollera blandare för överläckage och byta ut rör i undercentralen).
2025: Renovering av toaletter i föreningens gemensamma utrymmen.


Pågående / kommande renoveringar och underhåll:
2025: Ommålning av trapphus , beräknas börja 2025.
2025: Ombyggnation av före detta mangelrum till nya förråd.

Parkering

Parkering:
Föreningen har cirka 25 parkeringsplatser till uthyrning, separat kösystem tillämpas. Kostnaden för en parkeringsplats är cirka 550 kronor/månad.

Kabel-TV och bredband

Kabel-TV levereras av Tele2 (basutbudet ingår i månadsavgiften). Bredband levereras via Bredband2, bredband med
en hastighet om 1000/1000 Mbit/s ingår i månadsavgiften.

Övrigt

Till varje lägenhet hör egna förrådsutrymmen. Utöver detta finns ett antal extra förråd i olika storlekar att hyra, med priser från 110 kr/månad beroende på storlek.

Föreningen har ett flertal gemensamma utrymmen bland annat hobbyrum, bastu, mindre träningsrum och solarium. Dessutom finns övernattningslägenhet och festlokal att hyra, på föreningens hemsida finns mer information och priser.

Bostadsrättstillägget för hemförsäkringen ingår i månadsavgiften och betalas genom ett tillägg på månadsavgiften i april varje år.

Tvättstugor, cykel- och barnvagnsrum finns i källaren.

Föreningen har stora, fina, grönskande innergårdar med gemensamma uteplatser med grillmöjligheter och lekplats.

Planritning

Planskiss

Område

Allmänt

Kirseberg är en lugn och grön stadsdel i Malmö med blandad bebyggelse som omfattar flerbostadshus, gathus, radhus och villor. Området har flera grönområden i närheten, där Beijers Park är en av de största och mest välbesökta.

I området finns mataffärer, livsmedelsbutiker, apotek och en secondhandbutik samt flera restauranger. Här finns även pubar och caféer, allt inom bekvämt gångavstånd.

Kirseberg har ett strategiskt läge med goda kommunikationer. Det är enkelt att ta sig till både Malmö universitet och Lunds universitet med buss, cykel eller tåg. Malmö centralstation nås på bara några minuter och därifrån går tåg direkt till Lund. Havet finns inom räckhåll, och Ribersborgs strand ligger cirka 6 kilometer bort och nås lätt med cykel eller kollektivtrafik.

Kommunikation

Goda bussförbindelser med flera stadsbussar som avgår i området, och promenadavstånd till tågstationen Östervärn. För den bilburne är det enkelt att ta sig ut på motorvägarna.

Parkering

Boendeparkering råder i området, kontakta Malmö Stad för mer information.

Övrigt

ALLMÄNT
Uppgifterna i objektbeskrivningen härrör huvudsakligen från säljaren och kontrolleras av mäklaren endast om omständigheterna ger anledning till detta. Grip Fastighetsmäkleri garanterar ej att den i objektsbeskrivningen förekommande planlösningen är exakt skalenlig.

Vänligen kontakta mäklaren för upprättande av en personlig boendekostnadskalkyl.

UNDERSÖKNINGSPLIKT
Mäklaren uppmanar, via säljaren, köparen att undersöka bostaden noga, gärna med hjälp av en sakkunnig person, samt att sätta sig in i föreningens ekonomi och stadgar.
Efter köpet kan man inte göra gällande fel som borde upptäckts vid en noggrann undersökning av bostaden (Köplagen 20§).

BUDGIVNING
Grip Fastighetsmäkleri tillämpar öppen budgivning. Samtliga som deltar i budgivningen accepterar att deras namn, telefonnummer och de bud de avgett lämnas till köparen och säljaren efter avslutad budgivning.
I det fall bud inkommer efter avslutad budgivning, men innan överlåtelseavtal undertecknats är mäklaren skyldig att framföra budet till säljaren.

Det är alltid säljaren som avgör om ett bud ska accepteras eller bortses ifrån.
På säljarens inrådan kan avsteg från den öppna budgivningen göras under försäljningens gång. Detta kan innebära att samtliga inkomna bud inte redovisas i annonsen på nätet eller i SMS-utskick.
Kontakta mäklaren för att få information om samtliga inkomna bud.

Den slutliga köparen och säljaren tillhandahålls en förteckning över samtliga bud som inkommit samt namn och kontaktuppgifter till budgivarna.

SIDOTJÄNSTER
Fastighetsmäklaren får en indirekt administrationsersättning från Hemnet vid förmedling av sidotjänsten Hemnet Bas. Ersättningen utgör 30% av fakturerat belopp exklusive moms. Vid förmedling av tilläggsprodukter från Hemnet såsom Raketen, Hemnet Plus och Hemnet Premium kan det även utgå en indirekt ersättning om 30-50% av de fakturerade beloppet exklusive moms till fastighetsmäklaren.

Dokument